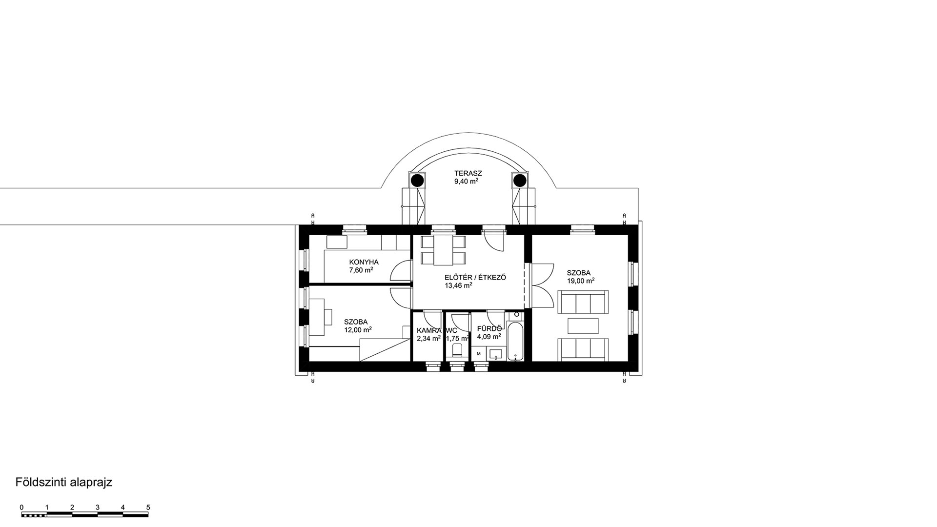
A balatoni-ingatlanok.hu főoldala | Balaton déli part | Siófok | Új ház építési lehetőség Siófokon