A balatoni-ingatlanok.hu főoldala | Balaton déli part | Nyaralva biztosíthatja jövedelmét
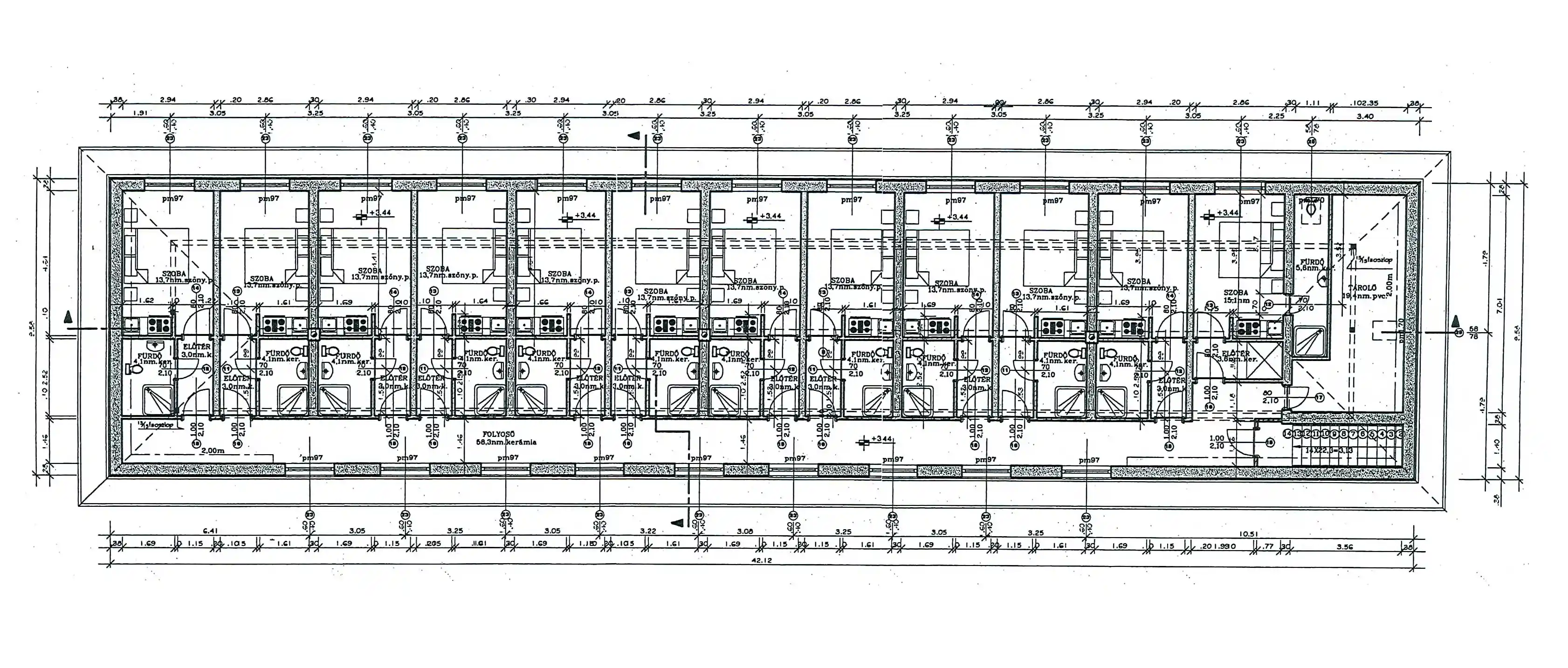
Emeleti alaprajz
Emeleti alaprajz